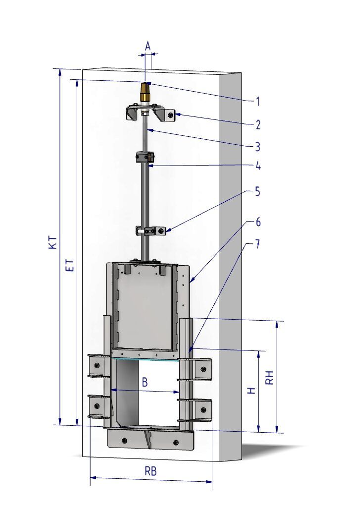
Gehäuselose Armaturen
Gehäuselose Armaturen normgerecht ausgeführt nach DIN oder wunschgemäß nach Ihren Anforderungen: Gewindeschieber, Rückstauklappen, Dammbalken aus Edelstahl. Sondergrößen sind problemlos umsetzbar.
Unsere Fachleute statten die Armaturen mit den passenden Antrieben aus. Auch die Montage gemäß DIN/EN übernehmen wir gern für Sie! Lassen Sie sich auch zu Fragen rund um den sicheren und fachgerechten Einbau von Absperr- und Regelarmaturen, Rohrleitungsarmaturen und Dammbalken und Dammbalkenverschlüssen beraten.
Download Gehäuselose Armaturen
Mehr zu gehäuselosen Armaturen
Unsere Gehäuselosen Schieber und Klappen aus Edelstahl lassen sich hervorragend in aggressive Umgebungen einsetzen. Lesen Sie unsere News: Edelstahlarmaturen meistern Herausforderungen in Klärwerken

GLA-WEL | Gehäuselose Armaturen






































































